AIR RAID SHELTERS IN
WICKHAM PARK,
BRISBANE, QLD
USED DURING WW2
![]()
There were many Air Raid Shelters built around Brisbane during WW2. It is generally unknown by most Brisbane people that many of them are still partially standing and used as bus shelters or shade shelters in parks around Brisbane. Many people stand under them or drive past them not realising their original use during WW2.

Two air raid shelters in Wickham Park on Spring Hill beside Wickham Terrace

Looking towards Roma Street Parklands with Albert Street in the background

Looking towards Albert Park with Wickham Terrace at the right of the photograph

Close-up of the design of the air raid shelter
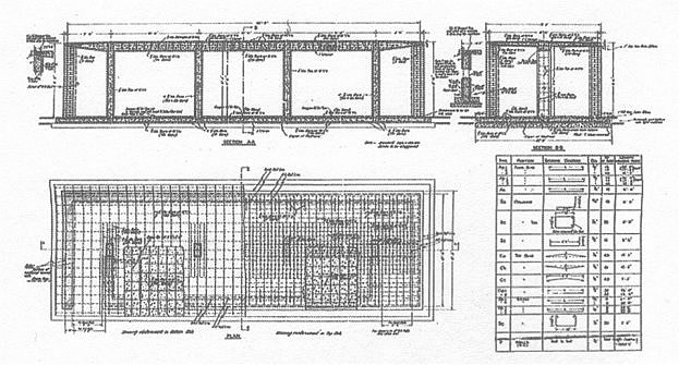
The Brisbane City Council adopted an innovative design for its public air raid shelters such that after the war, the brick walls around them could be removed leaving a cantilevered roof concrete structure ideal for bus shelters or general shade.

Design of Brisbane City Council Air Raid Shelters
Can anyone tell
me where there are more
of these structures still standing in Brisbane?
"Australia @ War" WWII Research Products
|
© Peter Dunn 2015 |
Please
e-mail me |
This page first produced 24 December 2003
This page last updated 18 January 2020